
Производители предлагают огромное количество газовых котлов, которые можно применять для отопления помещения. Очень часто владельцы домов озадачены выбором котла, а именно - его камеры сгорания. Есть котлы с открытой и закрытой камерами сгорания, каждый из которых отличается своими особенностями. Каждая из этих моделей отличается своими тонкостями работы и некоторыми различиями в строении, которые могут принципиально влиять на работу устройств.
Принцип работы котла
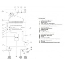
Настенные газовые котлы с открытой камерой сгорания являются максимально простыми и надежными устройствами. Это значительная по размеру газовая горелка, над ней размещен змеевик из множества изогнутых тонких трубок. По этим трубкам циркулирует теплоноситель, он нагревается до установленной от тепла, высвобождаемого при сгорании топлива. Для сжигания топлива необходим непрерывный доступ атмосферного воздуха.
Газовые котлы с открытой (естественной) тягой являются наглядным вариантом классической схемы отопления, когда воздух для горения топлива забирается из помещения. Отработанные газы оперативно выводятся наружу помещения через дымоход, наличие которого является обязательным.
Газовые котлы, оснащенные открытой камерой сгорания, отличаются следующими неоспоримыми преимуществами:
- Приемлемая стоимость сравнительно с другими более сложными моделями газовых котлов.
- Простая технология работы и отсутствие каких-либо лишних деталей, которые усложняют работу и могут выйти из строя.
- Минимальный шум при работе котла, пламя горит практически беззвучно и не принесет дискомфорта жильцам.
Используется минимальное количество деталей, которые подвержены износу. Именно поэтому периодическое обслуживание довольно простое и не требует больших затрат. Нужно просто периодически проверять зажигание газового котла с открытой камерой и уровень тяги в дымоходе.
Цена на котел с открытой камерой сгорания составляет от 1200 до 3000 руб.
Бренды котлов: ✔️Ariston (Аристон), ✔️Bosch (Бош), ✔️Baxi (Бакси), ✔️Immergas (Иммергаз), ✔️Ferroli (Феролли), ✔️Navien (Навиен), ✔️Protherm (Протерм), ✔️Vaillant (Вайлант), ✔️Viessmann (Висман), ✔️Лемакс и др
Мощность: от 10 до 100 квт.
